Launching Phase-II
Adarsh Parkland Phase II At Panathur Main Road, Bangalore
By Adarsh Group

Wrap Yourself With Nature 70% Open Space 75000+ Sq.Ft Outdoor Sports Area
  • Land Parcel : 21 Acres
  • No. of Units : 1050 Units
  • Elevation : B+G+14 Floors
  • Possession : March 2030

Premium 2.5 & 3 BHK Residences at

₹ 1.77 Cr* Onwards

RERA No : PRM/KA/RERA/1251/446/PR/210226/008479

Overview
Adarsh Parkland Phase II - 2.5 & 3 BHK Residences At Panathur Main Road, Bangalore

Adarsh Parkland Phase II is situated in a vast 21-acre area, offering an exceptional living experience where lush landscapes, vibrant parks, and open spaces come together to create a serene oasis. This project has been meticulously designed to redefine urban living by fostering a harmonious relationship between architecture and nature. Each apartment is strategically positioned to maximize natural light, allowing sunshine to fill every corner of your home. Expansive windows offer seamless transitions between indoor and outdoor spaces, providing breathtaking views of the beautiful surroundings.


Price

Price

Adarsh Parkland Phase II - Price

Type Area Price
2.5 BHK 1475 - 1485 Sq.Ft ₹ 1.77 Cr* Onwards   
3 BHK 1855 - 1860 Sq.Ft ₹ 2.21 Cr* Onwards   
Site & Floor Plans

Site Plans

Adarsh Parkland Phase II - MasterPlan

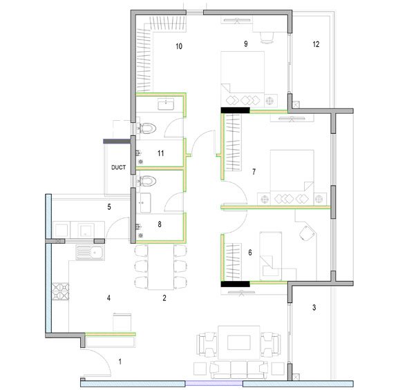
Adarsh Parkland Phase II - FloorPlans

2.5 BHK
3 BHK
Amenities

Amenities

Adarsh Parkland Phase II - Amenities

Basketball Court

Lawn Terraces

Clubhouse with Gymnasium

Kids Play Area

Swimming Pool

Amphitheatre

Jogging Track

Skating Rink

Multipurpose Lawn

Surface Car Park - Turf Cells

Gallery

Gallery

Adarsh Parkland Phase II - Gallery

Location

Location

Adarsh Parkland Phase II - Location

Nearby Landmarks

  • HSR Layout - 10 km
  • Silk Board - 11 km
  • Electronic City - 16 km
  • ITPL - 10 km
  • MG Road - 14 km
  • New Horizon Gurukul - 2.5 Km
  • Vibgyor High School - 3.3 km
  • Sakra World Hospital - 4.2 km
  • Phoenix Marketcity - 10 Mins*
  • Rainbow Childrens Hospital - 9 km
  • Cloudnine Hospital - 8 km
  • Phoenix Market City - 10 km
  • Koregaon Park - 20 Mins*
  • Virginia Mall - 7.5 km
  • KLM Fashion Mall - 4 km
Virtual Site Tour

Virtual Site Tour